Descriptif
Rive Droite Groupe Immobilier vous propose un magnifique attique de 3.5 pièces, vendu sur plan, bénéficiant de finitions haut de gamme et d’une vue panoramique exceptionnelle sur la plaine et les montagnes environnantes. Ce bien rare est situé sur la commune ensoleillée de Savièse (VS).
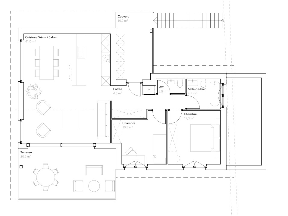
Cet appartement offre une distribution idéale avec une partie nuit composée de deux chambres orientées plein Sud, dont une suite, ainsi qu’une partie jour lumineuse comprenant un agréable séjour et une cuisine ouverte donnant accès à une superbe terrasse de 20 m². Deux salles de bains complètent ce bien ainsi qu'un couvert d'entrée de 10 m2.
La terrasse panoramique offre un cadre à couper le souffle, permettant de profiter pleinement du paysage pittoresque, de l’air pur des montagnes et des belles soirées d’été.
Distribution
Partie nuit
- Hall d’entrée
- 2 chambres dont 1 chambre en suite
- Salle de douche/WC
Partie jour
- Beau séjour avec salon, coin repas/bar et cuisine ouverte entièrement équipée
- WC visiteurs
- Accès à la terrasse de 20 m²
Divers
- Finitions de haute qualité
- Architecture soignée, parfaitement intégrée au paysage
- Pompe à chaleur et installations modernes
- Chauffage au sol pour un confort optimal
- Environnement calme avec vue panoramique tout en restant proche des commodités. La livraison est prévue pour le printemps 2027, garantissant des installations modernes et une construction respectueuse de l’environnement.
L’appartement dispose d’un couvert pour un véhicule (CHF 25’000.-) ainsi qu’une place extérieure (CHF 15’000.-), en sus du prix de vente affiché.
Un descriptif de construction détaillé est disponible sur demande.
Savièse
La commune de Savièse se situe sur un plateau ensoleillé au nord de Sion (rive droite). Elle bénéficie d’un climat agréable tout au long de l’année. Sion se trouve à seulement 5 à 10 minutes en voiture.
À moins de 30 minutes, vous rejoignez plusieurs domaines skiables majeurs tels que Les 4 Vallées, Crans-Montana ou Anzère
Contact visite : Johan Luyet | 079 752 88 04 | johan.luyet@rive-droite.ch
REMARQUES
Plans et photos additionnelles sur demande. Contactez nous pour recevoir un dossier complet et pour organiser une visite.
Ce bien vous est proposé par Rive Droite Groupe Immobilier SA | www.rive-droite.ch - info@rive-droite.ch | +41 27 327 63 00
Dossier de vente à l'usage exclusif des clients de Rive Droite Groupe Immobilier SA.
Toute reproduction ou utilisation du dossier de vente, des photos et des informations à d'autres fins est strictement interdite.
Ce document et les descriptions données, et notamment, les surfaces mentionnées, ont une valeur purement indicative et ne constituent pas un élément de référence contractuel.
Les indications précitées sont données sans engagement et sous réserve de modifications.
Toute responsabilité du courtier et de Rive Droite Groupe Immobilier SA est exclue.
Commodités
Environnement
- Village
- Verdoyant
- Montagnes
- Vignoble
- Quartier résidentiel
- Commerces
- Banque
- Poste
- Pharmacie
- Arrêt de bus
- Centre sportif
- Centre de tennis
- Terrain de football
- Salle de spectacle
- Médecin
Extérieur
- Terrasse(s)
- Place(s) de parc couverte(s)
- Place(s) de parc visiteur(s)
Intérieur
- Sans ascenseur
- Place(s) de parc visiteur(s)
- Cuisine ouverte
- WC séparés
- WC visiteurs
- Cave
- Non meublé
- Armoires encastrées
- Triple vitrage
- Lumière naturelle
- Mansardé
Equipement
- Cuisine équipée
- Cuisine agencée
- Cuisine avec îlot
- Téléphone
- Téléréseau
- WiFi
- Stores électriques
Sol
- A choix
Etat
- Neuf
- A construire
Exposition
- Sud
Ensoleillement
- Optimal
- Toute la journée
Vue
- Belle vue
- Dégagée
- Imprenable
- Vue lointaine
- Vue sur la vallée
- Panoramique
- Sans vis-à-vis
- Champêtre
- Ruisseau
- Forêt
- Montagnes
- Alpes




